
For Lease | $26.00/SF NNN
FOR LEASE | PRIME RETAIL SPACE IN GLASTONBURY CENTER

Robert Gaucher
O: (860) 761-6007
C: (860) 841-0774
[email protected]
Request More Info
Highlights
Prime Town Center (TC) zoned location
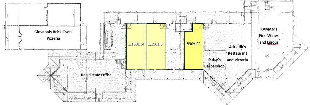
Spaces available from 890± SF up to 2,300± SF
Excellent visibility on Welles Street & Hebron Avenue
On-building & monument signage opportunities
Ample on-site parking
Easy access to Route 2, Exit 8
Property Description
O,R&L Commercial is please to present 30 Welles Street, Glastonbury, CT for Lease. 30 Welles offers prime retail space for lease in a well-located 14,895± SF brick masonry building. Flexible availabilities range from 890± SF up to 2,300± SF, with excellent visibility on Welles Street and Hebron Avenue, ample on-site parking, and both on-building and monument signage. Situated on 1.87 acres in the Town Center (TC) zone, the property provides convenient access to Route 2 at Exit 8. The building features 100% air conditioning, gas-fired forced air heat, and city utilities, with estimated NNN expenses of $9.00/SF.
Map





